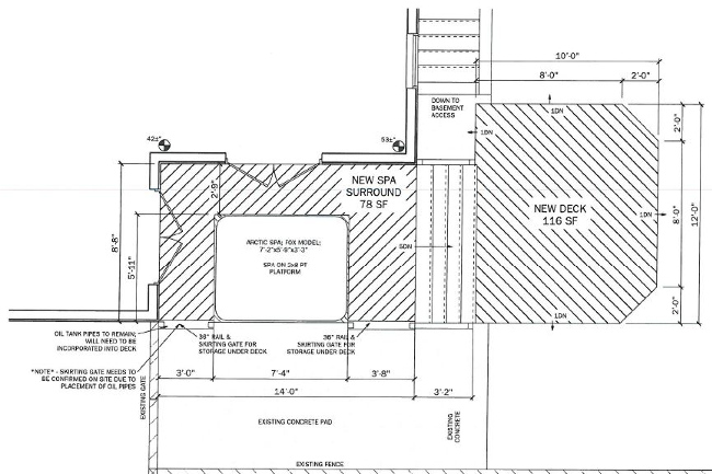
This downtown Halifax home had a small wooden landing area, but they really wanted to expand. They were looking for an entertainment area and a space for their new hot tub. We worked with the client to create a design that merged their ideas and needs.

A unique platform for the hot tub was incorporated into the upper deck. Access doors were built for convenient storage underneath the deck. The other half of the treated timber deck was kept clean and simple. Keeping the lower deck only one step above the ground, we were able to avoid using a railing and blocking access or views from the backyard.


