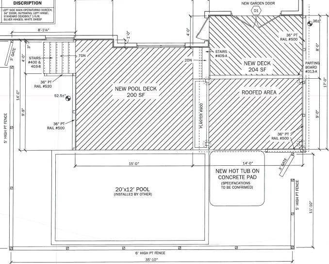
These Bedford home owners were looking for a multipurpose entertaining space with a new pool and hot tub area as well as an area protected from the elements and privacy fencing. Their existing deck was old, unsafe and did not leave much space for entertaining. Together with our clients, we designed and built over 400 square feet of outdoor living space, incorporating the pool and allowing better access to the yard and gardening beds.

This pressure treated wood deck incorporated a new exposed lounging space with easy access to the above ground pool area. The roofline was extended to create an undercover area for yearlong grilling and hot tub entry on stormy winter evenings. The new garden doors installed in the home offer uninterrupted sightlines and plenty of natural light. The area was then fenced with hinged gate access which gave them plenty of privacy and kept the pool area safely enclosed.
