We are pleased to showcase our ongoing custom screened porch and low-maintenance deck project in Blue Springs, Missouri. Over the coming weeks, we will share pertinent progress updates and photos. Be sure to follow our social media, where you can witness this custom Archadeck of Kansas City design and build project come to life!
For the first time ever, we are proud to demonstrate the Archadeck of Kansas City design and build process, first-hand and in real-time! What distinguishes our company, is not only our building product knowledge and experience, design expertise, and attention to detail, but our dogged determination to create the absolute best space for every client, no matter their needs!

Custom screened porch and deck design by Archadeck of Kansas City
These discerning homeowners reached out to us with a desire to create a more usable outdoor living space. When we first spoke, they had in mind updating their existing gazebo. Archadeck of Kansas City owner, Dan Hall, expressed the potential drawbacks of simply improving or re-building the gazebo. He informed the homeowners that even though gazebos make nice areas for outdoor living, they can lack in space and the proper shape required to fully utilize every square inch. Angles of a gazebo create limited furnishing capabilities – both in quantity and size. Furthermore, they can hamper an attractive furniture arrangement.

Existing deck and gazebo in Blue Springs MO
These homeowners originally feared that connecting a screened porch would be too difficult or even impossible with their existing steeply-sloped shed roof on the back of the home. To the contrary, Dan explained, this is an ideal roof connection for a new screened porch attachment.

The existing roofline of the home is a perfect fit for a high gable porch roof
Custom design features for this Blue Springs screened porch and deck include AZEK Autumn Chestnut deck and porch flooring, bronze DekPro™ aluminum railing, AZEK drink rail cap with lighted railing post caps, and PetScreen® screening. These homeowners had something special in mind for their new porch and sought out a solution. We will be installing screened French doors for ease of use and a classic designer touch.

Low-maintenance deck and screened porch with screened French doors

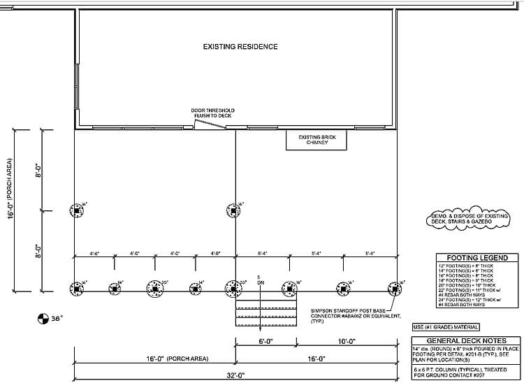
Screened porch and deck footings plan

Screened porch and deck framing plan

Screened porch roof framing plan

Screened porch and deck floor plan

Screened porch and deck construction details
We look forward to posting more information, as building moves forward. Come back to our blog, or simply follow us on Facebook and Instagram (@archadeckofkansascity), so you are sure not to miss out on progress updates and photos!

If you’re looking for a custom screened porch and deck builder for your Kansas City area home, get in touch with our award-winning designers for a free consultation at (913) 704-6240.